Cervo

Landsted i Ligurien, Italien 2023

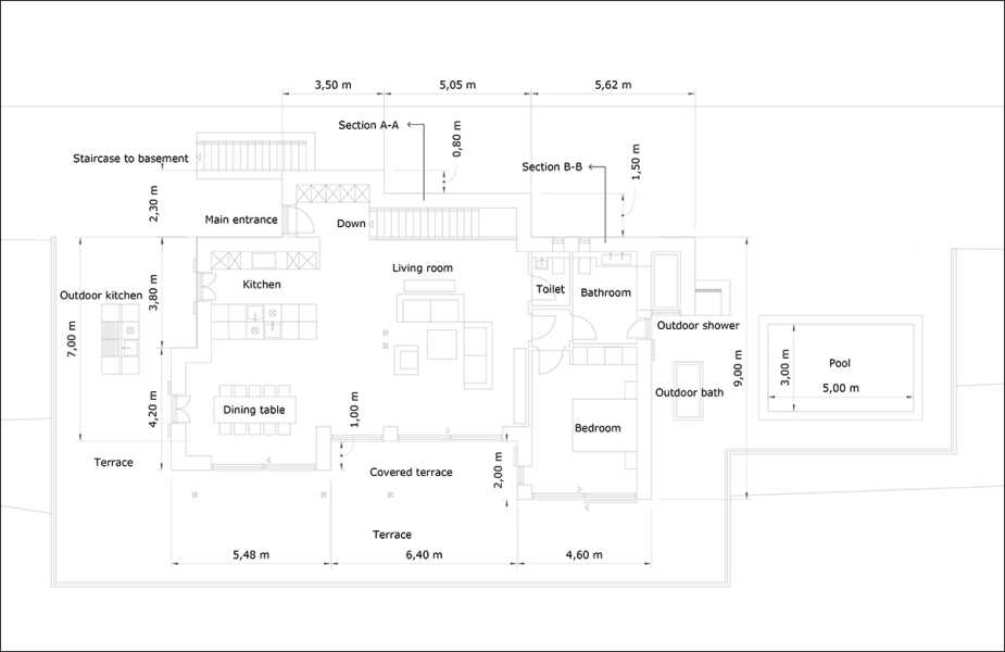
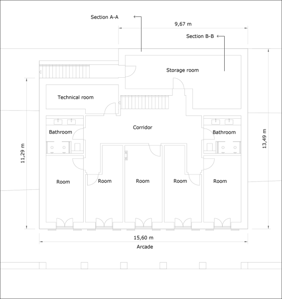
Landstedet i Cervo er beliggende på terrasserede olivenskråninger med udsigt ud over Middelhavet. Arkitekturprofilen henter sin inspiration fra klassisk Norditaliensk byggestil og er brutto 146 m², fordelt på stueplan og underetage med fuld facadehøjde mod syd. Huset indeholder i stueplan et stort køkken-alrum, opholdsrum, 2 wc/bad og 2 soverum. I underetagen findes 4 store værelser med tilhørende wc/bad samt depot og birum i forbindelse med olivenproduktion. Huset stod færdigt i 2023.
https://karltornfeldt.dk/files/gimgs/th-80_Cervo_11.png
 

Cervo

https://karltornfeldt.dk/files/gimgs/th-80_Cervo_9.png
 

Site

https://karltornfeldt.dk/files/gimgs/th-80_Cervo_10.png
 

Siteplan

https://karltornfeldt.dk/files/gimgs/th-80_Cervo_4.png
 

Stueplan

https://karltornfeldt.dk/files/gimgs/th-80_Cervo_6.png
 

Kælderplan

https://karltornfeldt.dk/files/gimgs/th-80_Cervo_5.png
 

Facader mod øst og vest

https://karltornfeldt.dk/files/gimgs/th-80_Cervo_22.png
 

Facade mod syd

https://karltornfeldt.dk/files/gimgs/th-80_Cervo_23.jpg
 

Udsigt mod Cervo

https://karltornfeldt.dk/files/gimgs/th-80_Cervo_3.png
 

Under opførelse

https://karltornfeldt.dk/files/gimgs/th-80_Cervo_14.png
 
 
https://karltornfeldt.dk/files/gimgs/th-80_Cervo_15.png
 
 
https://karltornfeldt.dk/files/gimgs/th-80_Cervo_13.png
 
 
https://karltornfeldt.dk/files/gimgs/th-80_Cervo_16.png